
КТО Я
Привет! Меня зовут Вика. Я профессиональный дизайнер интерьеров.
Работаю в небольшой дизайн-студии.
Хочу предложить свои услуги по разработке планировочного решения вашего жилья. Это эконом-вариант дизайн-проекта, начальный этап от которого вы можете самостоятельно оттолкнуться.
Обычно за помощью обращаются люди, ограниченные в своих квадратных метрах. Но, даже если площадь вашего жилья достаточна - всегда можно улучшить планировку именно под ваши нужды.
Конечно, я не волшебник, и не смогу увеличить площадь вашей квартиры. Но точно помогу вам найти свое место для каждого предмета в вашем доме.
При разработке придерживаюсь норм и стандартов. Если вижу хорошее решение, но без возможности узаконнить такую планировку - обращаю на это внимание заказчика.

КАК ЭТО РАБОТАЕТ
1. Вы предоставляете план с размерами + ваши хотелки по-максимуму (что должно быть на кухне, нужна ли двуспальная кровать, рабочий стол, необходима ли кладовка и т.п.)
2. Я делаю 3 варианта планировочных решений
3. Вы выбираете понравившиеся вам моменты из всех вариантов
4. Собираю для вас итоговый вариант планировочного решения с указанием размеров стен и мебели.
В итоге вы получаете план с расстановкой мебели + план с привязкой стен.
Привязка стен - это план для ваших строителей, по которому они будут возводить стены.
План с расстановкой мебели - это планировочное решение, по которому дальнейший ремонт упрощается. Вы будете понимать, что вот тут у вас кровать. значит надо сделать розетки, а вот тут стоит шкаф - значит выключатель должны быть на другой стене.
Работаю удалено, по размерам, предоставленным заказчиков. Но могу выехать к вам (Москва и ближайшее Подмосковье) и сделать обмер помещения. Эта услуга платная, стоимость оговаривается в каждом конкретном случае.
ВАЖНО
Подбором мебели не занимаюсь - расставляю мебель стандартных размеров. Допустим - диван 1800 х 1000 мм, кровать 1800 х 2100 мм и т.п. А вы уже при покупке мебели ориентируясь на эти размеры можете покупать подходящую именно вам мебель.
СТОИМОСТЬ
125 руб за кв.м. по полу.
Оплата производится постфактум или частями (зависит от итоговой стоимости).
Если вы планируете заказать и другие этапы дизайн-проекта: электрика, отделочные материалы, планы потолков, визуализация и т.д. - уточняйте сразу (работа строиться несколько по-другому и в комплексе выходит дешевле).
ПРИМЕРЫ
2х-комнатная квартира, общей площадью 66 кв.м.
Состав семьи: родители + маленький ребенок (возможно появление второго).
Задача: две комнаты + кухня с гостевой зоной + обязательно наличие темной комнаты (кладовка, гардеробная).
Особые пожелания: как можно больше мест для хранения
План квартиры

Предложенные варианты

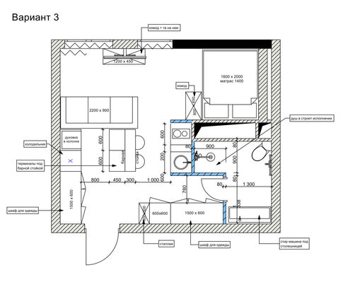
Итоговый вариант

План возводимых перегородок

квартира-студия, общей площадью 28 кв.м.
Состав семьи: молодая пара - это их первое совместное жилье
Задача: разместить двух человек + наличие гардеробной
На этом примере хочу показать возможности использования жилого пространства, когда каждый метр важен.
План квартиры

Предложенные варианты

Итоговый вариант
План возводимых перегородок


2х -комнатная квартира, общей площадью 61 кв.м.
Состав семьи: супружеская пара, дочь живет отдельно, но навещает родителей
Задача: большая кухня с мягкой зоной + гостиная и спальня
Данным примером хочу показать, что всегда есть возможность улучшить планировку именно под конкретные нужды.
Хозяйка всегда мечтала о большой, просторной кухни. И казалось бы, площадь приличная для воплощения ее мечты - 12 кв.м. Но по факту оказалось, что кухонный гарнитур можно поставить только по стене длиной 3 метра, а этого расстояния не хватало для всего необходимого.
План квартиры


Предложенные варианты
Итоговый вариант
План возводимых перегородок


2-комнатная квартира, старая панельная застройка.
Состав семьи: родители + разнополые дети школьного возраста
Задача: из двух комнат сделать три отдельные комнаты, чтобы расселить детей
Особенности: одна из комнат остается без окон. Решено было сделать там спальню.
Позже, у заказчиков появилась возможность приобрести квартиру побольше, поэтому этот проект остался нереализованным.
План квартиры
Предложенные варианты

Предложенные варианты


Итоговый вариант
1-комнатная квартира, общей площадью 55 кв.м
Состав семьи: родители + ребенок школьного возраста
Задача: разделить комнаты + выделить место для приема гостей. Разделить санузел
Особенности: часто необходимо сделать из однушки "трехкомнатную" квартиру. Конечно, комнаты получаются небольшими и кухня чаще всего остается без окна, но таким образом у каждого есть свой "угол".
План квартиры

Итоговый вариант

План возводимых перегородок








